Preferiti
Uffici | Locazione

San F. d’Assisi 15

Scarica il pdf
Milano, Corso Italia

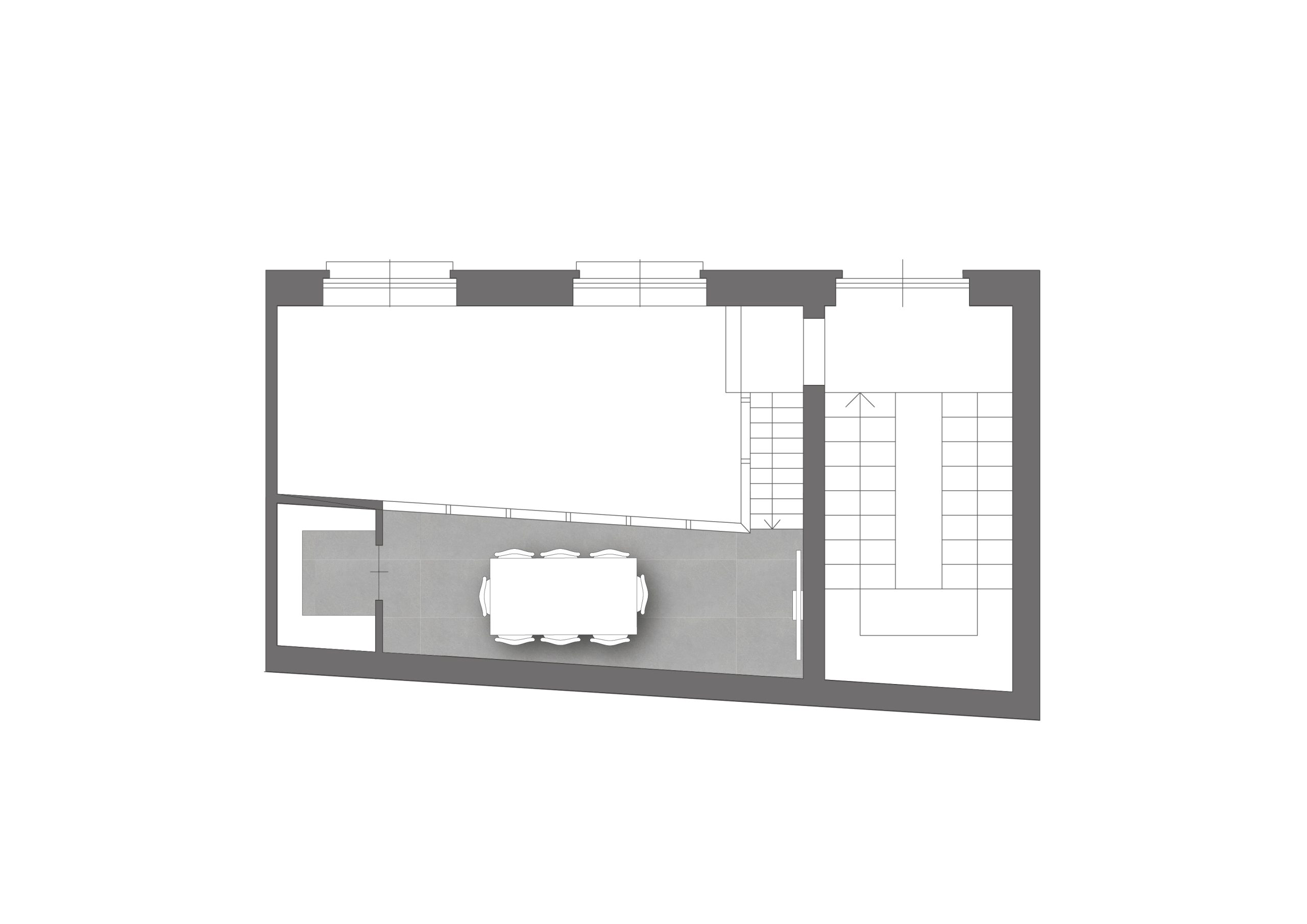
In Via San Francesco d’Assisi 15, a pochi passi da Corso Italia e da Piazza Missori, all’interno di un complesso immobiliare ad uso direzionale è disponibile un ufficio di ca. 70 mq recentemente riqualificato.
Il tratto caratteristico dell’immobile è la flessibilità contemporanea ed elegante di uno spazio polifunzionale, una forma che cambia e può diventare un ufficio o essere adibito a showroom.
La porzione, con la sua facciata modulare, si presta perfettamente alla massima flessibilità favorita dalla grande luminosità data dalle vetrate in stile newyorkese che affacciano sulla corte interna.

Riferimento annuncio AU 2324/21
Contratto Locazione
Tipologia Uffici
Superficie 70 mq
Locali 2
Piano Terra
Disponibilità Immediata
Servizio di portineria
Porta blindata
Ristrutturato
Open space
Possibilità Plug&Play

Canone annuale 26.000 €
Canone mensile 2.166 €
Oneri accessori annuali 3.000 €
Oneri accessori mensili 250 €

Anno di costruzione 1940
Stato Buono
Riscaldamento Centralizzato, a radiatori
Climatizzatore Autonomo split
Classe energetica D 43 KWh/m3 anno

L'area, caratterizzata dalla presenza di edifici risalenti al secolo scorso a destinazione residenziale e terziaria, è ricca di ogni tipo di servizio (ristoranti, banche, negozi). L'accessibilità è ottima, grazie alla presenza dei principali mezzi pubblici ubicati nelle immediate vicinanze, tra cui la stazione metropolitane MM3 Missori e la prossima apertura della stazione MM4 Santa Sofia che consentirà un collegamento facile e veloce con l'aeroporto di Linate.

Richiedi maggiori informazioni

    This site is registered on wpml.org as a development site. Switch to a production site key to remove this banner.